南海本線 高石駅高石市立高陽小学校区新築一戸建て3880万円の物件詳細です。
高石市千代田4丁目 新築一戸建て
価格3,880万円 返済例 月々 円
南海本線 高石駅 徒歩13分
| 物件番号 | 212013 |
|---|---|
| 住所 | 大阪府高石市千代田4丁目 |
| 最寄駅 | 南海本線 高石駅 徒歩13分 |
| 小学校区 | 高石市立高陽小学校区 |
| 中学校区 | 高石市立高南中学校区 |
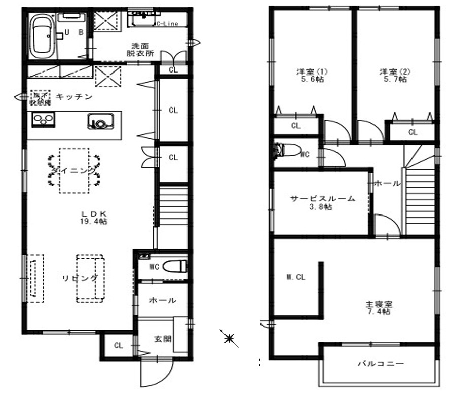
| 間取 | 3SLDK |
| 駐車場 | 有 |
| 土地面積 | 106.22㎡ |
| 建物面積 | 104.24㎡ |
| バルコニー面積 | あり(-) |
| 築年月日 | 2025年12月 |
| 構造 | 木造 |
| 建築確認番号 | 第BVJ-ENG25-10-1173号 |
| 設備 | 水道/公営 ガス/都市ガス 排水/下水 |
| 用途地域 | 第一種中高層住居専用地域 |
| 建ぺい率 | 60% |
| 容積率 | 200% |
| 地目 | 宅地 |
| 現況 | 未完成 |
| 引渡し | 相談 |
| 取引態様 | 仲介 |
| 物件登録日/価格 | 2025/11/02 3880万円 |
| 価格更新日/価格 | 2026/05/08 3,880万円 |
| 情報更新日 | 2026/05/08 |
| 次回更新予定日 | 2026/06/07 |
- 新築物件!
- トイレ2ヶ所あり
- 駐車2台可(車種制限あり)
- 耐震等級3
- ウォークインクローゼット付
- シューズインクローゼット付き
- 全室収納あり
- 収納たくさんあります♪
- パントリー付(食品庫)
- 自動お湯はり機能付き!
- 浴室乾燥暖房付き
- 追い炊き機能付き
- システムキッチン
- カウンターキッチン
- 食器洗乾燥機付き
- トイレ洗浄保温機能付き
- モニター付インターフォン
- ペアガラス
- アフターサービス付
- 木造
- 自己資金0円!ご相談ください
- 近くに公園あります♪
- 住宅ローン無料相談受付中!
- フラット35S利用可能
- 長期優良住宅
- 住宅性能等級多項目最高等級
- 24時間換気
- 床下収納あり
- 浄水器
- シューズBOX
大阪府高石市千代田4丁目新築一戸建て

(株)ミライズでは堺市・和泉市・高石市・泉大津市・忠岡町・岸和田市・大阪狭山市・貝塚市・熊取町・泉佐野市を中心に南大阪の不動産物件を多数扱っております。 特に、新築物件や自由設計・注文住宅可の物件に関しましては是非とも弊社へお任せ下さい! 「南大阪一戸建てナビ」にはネットには掲載されていない未公開物件が多数公開中! ご登録いただきますと、会員様の条件にあった最新の物件がいち早くメールでお届け! 不動産売買はあなたの人生の中で一番高額な買い物になるでしょう。 だからこそ!!経験豊富で多彩な知識を持ったスタッフが満足のできる物件選びをお客様目線でしっかりとサポートさせて頂きます! 弊社では、住宅ローンアドバイザーがおり、資金不安や、 他社でローン審査を断られた方など、なんでもかまいません!一度ご相談ください! また売却等のご相談も承っております。 あなたの大切な財産を次の方へとしっかりお繋ぎさせていただきます。 簡単なお悩みから大切なご相談までどんな事でもお気軽にお問い合わせください! ご来店、お待ちしております!
| 物件担当の小笠原です。 現地へのご案内につきましてはお気軽にお問い合わせください。 自己紹介はこちら |
現地へのご案内につきましては
お気軽にお問い合わせください。
ボタンをクリックすると、物件近辺からのルート検索、周辺の生活施設の検索が可能です。
| 物件ページQR |
金利%/ 年ローン
- 毎月返済額
- 円
また、お客様のご条件により金利の優遇幅が変動する場合があります。
※返済例は全額ローン(ボーナス返済0円)、元利金等支払、借入期間35年、変動金利(金利優遇適用後)の0.65%にて計算(現在2026年05月適用)
住宅ローンシミュレーターを用いて算出したものであり、実際の借り入れ事例を示すものではなく、また、実際の支払い金額と若干計算結果が異なる場合があります。金利優遇にはいくつかの条件がございます。条件等により優遇が適用されない場合もございます。上記金利は、優遇金利を確約するものではありません。また、お借り入れの際は、銀行事務手数料等別途諸費用が発生する場合がございます。詳細につきましては上記金融機関公式サイト、もしくは弊社住宅ローンアドバイザーにご相談ください。






















