泉北線 栂・美木多駅堺市立御池台小学校区中古一戸建て2280万円の物件詳細です。
堺市南区御池台4丁 中古一戸建て
価格2,280万円 返済例 月々 円
泉北線 栂・美木多駅 車で10分
| 物件番号 | 209831 |
|---|---|
| 住所 | 大阪府堺市南区御池台4丁 |
| 最寄駅 | 泉北線 栂・美木多駅 車で10分 |
| 小学校区 | 堺市立御池台小学校区 |
| 中学校区 | 堺市立庭代台中学校区 |
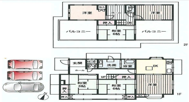
| 間取 | 6DK |
| 駐車場 | 有 |
| 土地面積 | 240.13㎡ |
| 建物面積 | 118.88㎡ |
| バルコニー面積 | あり(-) |
| 築年月日 | 1982年01月 |
| 構造 | RC(鉄筋コンクリート) |
| 設備 | 水道/公営 ガス/指定なし 排水/指定なし |
| 用途地域 | 第一種低層住居専用地域 |
| 建ぺい率 | 40% |
| 容積率 | 80% |
| 地目 | 宅地 |
| 現況 | 空家 |
| 引渡し | 相談 |
| 取引態様 | 仲介 |
| 物件登録日/価格 | 2025/10/11 2280万円 |
| 価格更新日/価格 | 2026/01/15 2,280万円 |
| 情報更新日 | 2026/01/15 |
| 次回更新予定日 | 2026/02/14 |
- トイレ2ヶ所あり
- 駐車3台以上可!
- 空家
- 室内丁寧に使用されてます
- 2面バルコニーです♪
- 収納たくさんあります♪
- リフォーム改装相談可能です♪
- RC造
- 自己資金0円!ご相談ください
- 近くに公園あります♪
- 住宅ローン無料相談受付中!
大阪府堺市南区御池台4丁中古一戸建て

(株)ミライズでは堺市・和泉市・高石市・泉大津市・忠岡町・岸和田市・大阪狭山市・貝塚市・熊取町・泉佐野市を中心に南大阪の不動産物件を多数扱っております。 特に、新築物件や自由設計・注文住宅可の物件に関しましては是非とも弊社へお任せ下さい! 「南大阪一戸建てナビ」にはネットには掲載されていない未公開物件が多数公開中! ご登録いただきますと、会員様の条件にあった最新の物件がいち早くメールでお届け! 不動産売買はあなたの人生の中で一番高額な買い物になるでしょう。 だからこそ!!経験豊富で多彩な知識を持ったスタッフが満足のできる物件選びをお客様目線でしっかりとサポートさせて頂きます! 弊社では、住宅ローンアドバイザーがおり、資金不安や、 他社でローン審査を断られた方など、なんでもかまいません!一度ご相談ください! また売却等のご相談も承っております。 あなたの大切な財産を次の方へとしっかりお繋ぎさせていただきます。 簡単なお悩みから大切なご相談までどんな事でもお気軽にお問い合わせください! ご来店、お待ちしております!
| 物件担当の小笠原です。 現地へのご案内につきましてはお気軽にお問い合わせください。 自己紹介はこちら |
現地へのご案内につきましては
お気軽にお問い合わせください。
ボタンをクリックすると、物件近辺からのルート検索、周辺の生活施設の検索が可能です。
| 物件ページQR |
金利%/ 年ローン
- 毎月返済額
- 円
また、お客様のご条件により金利の優遇幅が変動する場合があります。
※返済例は全額ローン(ボーナス返済0円)、元利金等支払、借入期間35年、変動金利(金利優遇適用後)の0.65%にて計算(現在2026年01月適用)
住宅ローンシミュレーターを用いて算出したものであり、実際の借り入れ事例を示すものではなく、また、実際の支払い金額と若干計算結果が異なる場合があります。金利優遇にはいくつかの条件がございます。条件等により優遇が適用されない場合もございます。上記金利は、優遇金利を確約するものではありません。また、お借り入れの際は、銀行事務手数料等別途諸費用が発生する場合がございます。詳細につきましては上記金融機関公式サイト、もしくは弊社住宅ローンアドバイザーにご相談ください。






















