大阪府和泉市内田町1丁目中古一戸建ての不動産情報です。
価格 1,680万円返済例 月々 円
中古一戸建て
泉北線 和泉中央駅 徒歩18分
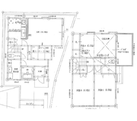
土地面積 115.60㎡ / 建物面積 96.05㎡ / 間取り 3SLDK
|
|
|
| 物件番号 | 221192 |
|---|---|
| 住所 | 大阪府和泉市内田町1丁目 |
| 小学校区 | 和泉市立北松尾小学校 |
| 中学校区 | 和泉市立石尾中学校 |
| 間取 | 3SLDK |
| 駐車場 | 有 |
| 土地面積 | 115.60㎡ |
| 建物面積 | 96.05㎡ |
| 築年月日 | 2006年05月 |
| 構造 | 木造 |
| 用途地域 | 準工業地域 |
| 建ぺい率 | 60% |
| 容積率 | 200% |
| 地目 | 宅地 |
| 現況 | 空家 |
| 引渡し | 即時 |
| 取引態様 | 仲介 |
現在の店頭基準金利は3.275%
万円 借入期間年 金利%毎月のお支払い額円
※頭金0円でボーナス払いなしの場合の金額です。
また、お客様のご条件により金利の優遇幅が変動する場合があります。
また、お客様のご条件により金利の優遇幅が変動する場合があります。
- トイレ2ヶ所あり
- 駐車場あり
- 空家
- 室内丁寧に使用されてます
- ロフト付♪
- 全室収納あり
- 収納たくさんあります♪
- 自動お湯はり機能付き!
- 浴室乾燥暖房付き
- 追い炊き機能付き
- システムキッチン
- カウンターキッチン
- トイレ洗浄保温機能付き
- モニター付インターフォン
- ペアガラス
- リフォーム改装相談可能です♪
- 木造
- 自己資金0円!ご相談ください
- 近くに公園あります♪
- 住宅ローン無料相談受付中!
- シューズBOX
大阪府和泉市内田町1丁目中古一戸建て
(株)ミライズでは堺市・和泉市・高石市・泉大津市・忠岡町・岸和田市・大阪狭山市・貝塚市・熊取町・泉佐野市を中心に南大阪の不動産物件を多数扱っております。
特に、新築物件や自由設計・注文住宅可の物件に関しましては是非とも弊社へお任せ下さい!
「南大阪一戸建てナビ」にはネットには掲載されていない未公開物件が多数公開中!
ご登録いただきますと、会員様の条件にあった最新の物件がいち早くメールでお届け!
不動産売買はあなたの人生の中で一番高額な買い物になるでしょう。
だからこそ!!経験豊富で多彩な知識を持ったスタッフが満足のできる物件選びをお客様目線でしっかりとサポートさせて頂きます!
弊社では、住宅ローンアドバイザーがおり、資金不安や、
他社でローン審査を断られた方など、なんでもかまいません!一度ご相談ください!
また売却等のご相談も承っております。
あなたの大切な財産を次の方へとしっかりお繋ぎさせていただきます。
簡単なお悩みから大切なご相談までどんな事でもお気軽にお問い合わせください!
ご来店、お待ちしております!
物件担当の小笠原です。 |
表示の地図は本物件の正確な位置を表示した地図ではございません。物件周辺の地図を表示しております。
会員登録の上、ログインいただきますと、物件の位置を正確に表示した地図がご覧いただけます。
会員登録の上、ログインいただきますと、物件の位置を正確に表示した地図がご覧いただけます。
その他設備・条件
エレベーター システムキッチン 給湯 追い焚き 洗髪洗面化粧台