大阪府和泉市井ノ口町売地の不動産情報です。
価格 1,700万円返済例 月々 円
土地
阪和線 和泉府中駅 徒歩15分
土地面積 79.52㎡ / 建物面積 0.00㎡ / 間取り -
|
|
| 物件番号 | 217316 |
|---|---|
| 住所 | 大阪府和泉市井ノ口町 |
| 小学校区 | 和泉市立国府小学校 |
| 中学校区 | 和泉市立和泉中学校 |
| 土地面積 | 79.52㎡ |
| 用途地域 | 第二種住居地域 |
| 建ぺい率 | 60% |
| 容積率 | 160% |
| 地目 | 宅地 |
| 現況 | 更地 |
| 引渡し | 即時 |
| 取引態様 | 仲介 |
現在の店頭基準金利は3.275%
万円 借入期間年 金利%毎月のお支払い額円
※頭金0円でボーナス払いなしの場合の金額です。
また、お客様のご条件により金利の優遇幅が変動する場合があります。
また、お客様のご条件により金利の優遇幅が変動する場合があります。
- 建築条件なし売地
- 更地
- 自己資金0円!ご相談ください
- 近くに公園あります♪
- 住宅ローン無料相談受付中!
- 自由設計可能です
- MIRISEシリーズにて建築可能
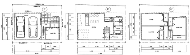
- 他にも参考プラン図あり
大阪府和泉市井ノ口町売地
(株)ミライズでは堺市・和泉市・高石市・泉大津市・忠岡町・岸和田市・大阪狭山市・貝塚市・熊取町・泉佐野市を中心に南大阪の不動産物件を多数扱っております。
特に、新築物件や自由設計・注文住宅可の物件に関しましては是非とも弊社へお任せ下さい!
「南大阪一戸建てナビ」にはネットには掲載されていない未公開物件が多数公開中!
ご登録いただきますと、会員様の条件にあった最新の物件がいち早くメールでお届け!
不動産売買はあなたの人生の中で一番高額な買い物になるでしょう。
だからこそ!!経験豊富で多彩な知識を持ったスタッフが満足のできる物件選びをお客様目線でしっかりとサポートさせて頂きます!
弊社では、住宅ローンアドバイザーがおり、資金不安や、
他社でローン審査を断られた方など、なんでもかまいません!一度ご相談ください!
また売却等のご相談も承っております。
あなたの大切な財産を次の方へとしっかりお繋ぎさせていただきます。
簡単なお悩みから大切なご相談までどんな事でもお気軽にお問い合わせください!
ご来店、お待ちしております!
物件担当の矢野です。 |
表示の地図は本物件の正確な位置を表示した地図ではございません。物件周辺の地図を表示しております。
会員登録の上、ログインいただきますと、物件の位置を正確に表示した地図がご覧いただけます。
会員登録の上、ログインいただきますと、物件の位置を正確に表示した地図がご覧いただけます。
その他設備・条件
エレベーター システムキッチン 給湯 追い焚き 洗髪洗面化粧台