グラン・コート萩原天神大阪府堺市東区日置荘原寺町中古マンションの不動産情報です。
価格 2,480万円返済例 月々 円
中古マンション
南海高野線 萩原天神駅 徒歩4分
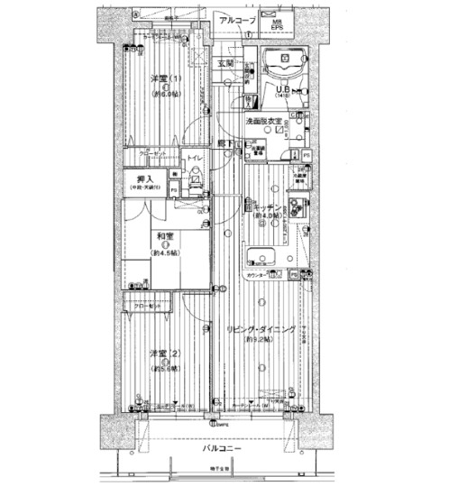
建物面積 64.54㎡ 壁心 / 間取り 3LDK
|
|
|
| 物件番号 | 215013 |
|---|---|
| 住所 | 大阪府堺市東区日置荘原寺町 |
| 小学校区 | 堺市立日置荘小学校 |
| 中学校区 | 堺市立日置荘中学校 |
| 間取 | 3LDK |
| 駐車場 | 空有(駐車場料金:9000円) |
| 建物面積 | 64.54㎡ 壁心 |
| バルコニー面積 | 10.44㎡ |
| 築年月日 | 2010年02月 |
| 構造 | RC(鉄筋コンクリート) |
| 管理費 | 7700円 |
| 修繕積立金 | 8700円 |
| 管理形態 | - |
| 用途地域 | 近隣商業地域 |
| 現況 | 居住中 |
| 引渡し | 相談 |
| 取引態様 | 仲介 |
現在の店頭基準金利は3.275%
万円 借入期間年 金利%毎月のお支払い額円
※頭金0円でボーナス払いなしの場合の金額です。
また、お客様のご条件により金利の優遇幅が変動する場合があります。
また、お客様のご条件により金利の優遇幅が変動する場合があります。
- 収益物件にいかがですか?
- 居住中
- 室内丁寧に使用されてます
- 収納たくさんあります♪
- オーナーチェンジ物件です♪
- 上層階で眺望・通風・日当たり良好!
- バルコニー日当たり良好です♪
- エレベーター付で上層階も楽々です♪
- ペット飼育可能です♪管理規約あり
- オートロック付で女性にも安心♪
- 駐車場空きあり 要確認
- 管理組合あり
- 自己資金0円!ご相談ください
- 駅徒歩10分以内の好立地!
- スーパー等生活施設充実
- 住宅ローン無料相談受付中!
大阪府堺市東区日置荘原寺町中古マンション
(株)ミライズでは堺市・和泉市・高石市・泉大津市・忠岡町・岸和田市・大阪狭山市・貝塚市・熊取町・泉佐野市を中心に南大阪の不動産物件を多数扱っております。
特に、新築物件や自由設計・注文住宅可の物件に関しましては是非とも弊社へお任せ下さい!
「南大阪一戸建てナビ」にはネットには掲載されていない未公開物件が多数公開中!
ご登録いただきますと、会員様の条件にあった最新の物件がいち早くメールでお届け!
不動産売買はあなたの人生の中で一番高額な買い物になるでしょう。
だからこそ!!経験豊富で多彩な知識を持ったスタッフが満足のできる物件選びをお客様目線でしっかりとサポートさせて頂きます!
弊社では、住宅ローンアドバイザーがおり、資金不安や、
他社でローン審査を断られた方など、なんでもかまいません!一度ご相談ください!
また売却等のご相談も承っております。
あなたの大切な財産を次の方へとしっかりお繋ぎさせていただきます。
簡単なお悩みから大切なご相談までどんな事でもお気軽にお問い合わせください!
ご来店、お待ちしております!
物件担当の矢野です。 |
表示の地図は本物件の正確な位置を表示した地図ではございません。物件周辺の地図を表示しております。
会員登録の上、ログインいただきますと、物件の位置を正確に表示した地図がご覧いただけます。
会員登録の上、ログインいただきますと、物件の位置を正確に表示した地図がご覧いただけます。
その他設備・条件
エレベーター システムキッチン 給湯 追い焚き 洗髪洗面化粧台